CAD-Customizing: Referenz-Projekt Erlkönig Basel,
vom Bestandsplan zum digitalen Umbauplan!
|
Nachfolgend ein Beipiel für die Digitalisierung von Plan-Altbeständen bspw. ab Papiervorlage ins CAD-System Vectorworks. Im Zuge dieser Planerstellung wurden komplexer Projektvorlagen erarbeitet; ganz speziell an die Anforderungen des Projektes angepasst. Siehe nachfolgend am Beispiel des Referenzobjekts „Erlkönig, Basel“ --> Neu: "Restaurant Bahnkantine".
|
| Bild: merkle architekten, Basel / © copyright 2012 / www.merklearchitekten.ch |
 |
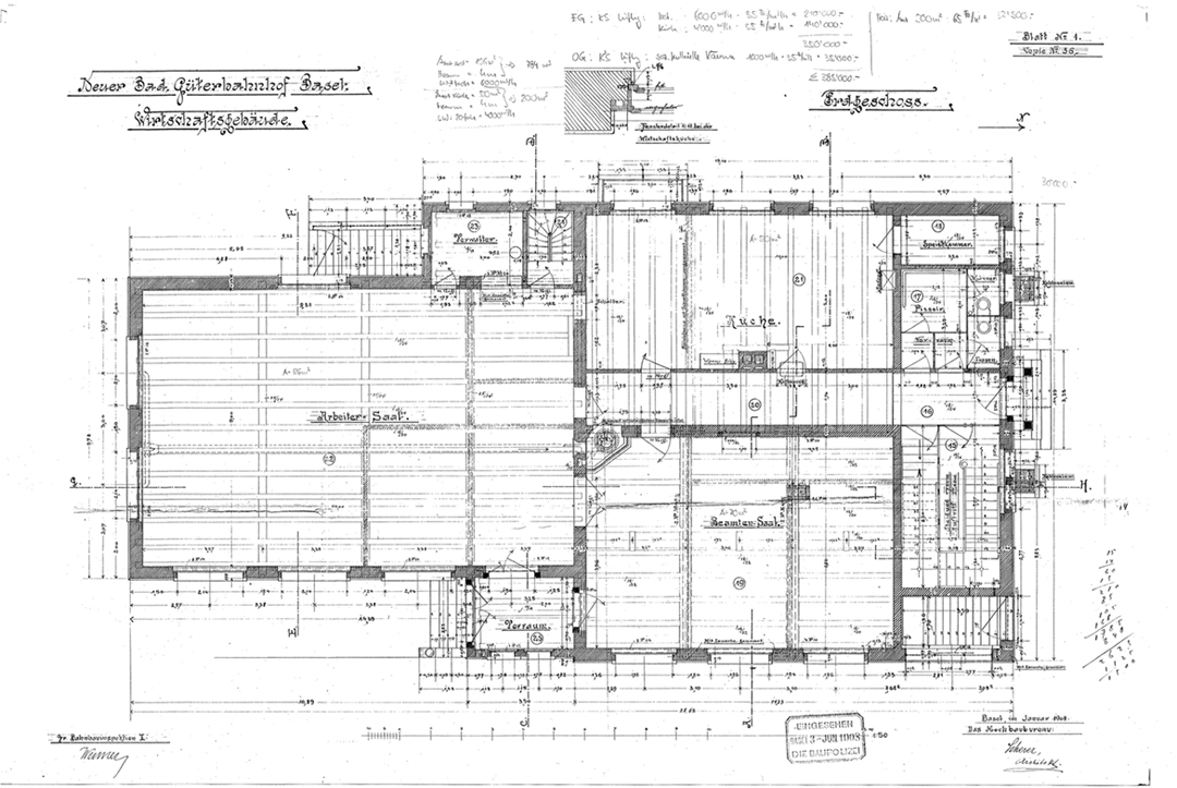
| Originalpläne aus 1908 / © copyright 1908/2012: merkle architekten. |
 |
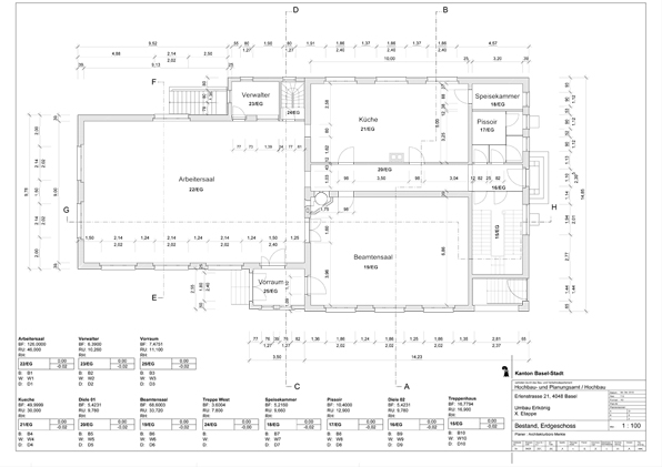
Bestandspläne aus 2010: Vectorworks-CAD-Pläne unter anderem mit Massenermittlung u. Raumstempel. © copyright 2010: merkle architekten. Plandigitalisierung, CAD-Customizing und -Layout: Georg Wider |
Im Foto oben ist der neue, sanierte Zustand dokumentiert. Das Zeitungsbild unten zeigt den Zustand vor der energetischen Sanierung. Aus dem Bericht der "Blick am Abend" sind Informationen aus früherer und künftiger Nutzung zitiert.
|
| © copyright 2011: Blick am Abend, Ausgabe Basel v. 26.09.2011 / www.blickamabend.ch |
Pressemeldung aus "Bilck am Abend" mit einem Foto der gleichen Ansicht vor dem Umbau. Das Bild zeigt die alte Bausubstanz. Anhand der Original-Papierbaupläne aus dem Baujahr 1908 wurden von uns die CAD-Bestandspläne neu erstellt. Diesmal jedoch als "intelligente CAD-Baupläne" unter anderem mit automatischer Flächen- und Volumenermittlung. Diese Kennwertermittlung diente als Grundlage für die energetische Neuberechnung (Optimierung) im Rahmen der architektonischen Umgestaltung. |
Was bedeutet CAD-Customizing?
CAD-Customizing bedeutet: Effektive Plangestaltung durch individuelle, kundenspezifische CAD-Programm-Anpassung.
Mit dem System des CAD-Customizings erreicht man hierbei einen erheblichen Rationalisierungeseffekt durch das Prinzip des "Reverse-Engineerings".
Dies bedeutet, man erhält zuerst ein 100%-iges CAD-Ergebnis und übernimmt in der Folge alle Customizing-Effekte für die Folgeprojekte. Somit ist sichergestellt, dass der komplette CAD-Wissentransfer effektiv dokumentiert und gespeichert bleibt.
Im obigen Beispiel wurden anhand der Original-Papierpläne die Vectorworks CAD-Modelle erstellt. Auf Basis solcher konkreten Planungsaufgaben und -Grundlagen wurden alle nötigen bürotypischen CAD-Vorgaben erstellt. Diese so erzeugten CAD-Vorgaben sind bei jedem Projekt ganz spezifisch und somit speziell an das individuelle Unternehmen anzupassen.
Die Vorteile eines CAD-Customizings liegen auf der Hand: Aus einer solchen Projektvorlage kann eine allgemeine Bürovorlage entwickelt werden, welche alle relevanten, bürospezifischen Projektstrukturen enthält (Klassen, Ebenen, Layouts, Planköpfe, Tabellen, Bibliotheken etc.).
Die durch die Planerstellung ermittelten Wiederholtätigkeiten, Wiederholteile und bürotypischen CAD-Workflows sind sehr wertvoll und werden in der Regel für die weitere Verwendung dokumentiert.
|